Revitalising a local landmark of working class production as a public space for individuals to experiment with ceramic-based making facilities. A proposed platform for re-construction and re-investment in the isolated, former industry borough of Newham.

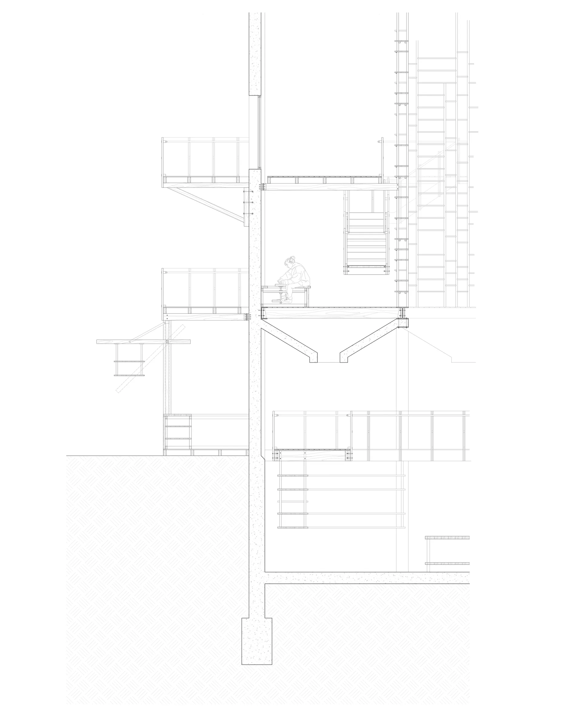
A nexus of experimental ceramic making facilities where materials and community can work together through hand building, exchange and activity. Replacing raw material with waste locally produced to create sustainable making and construction processes for the future. Occupying a disused grain silo, located alongside the Royal Docks, West Silvertown, this proposal will utilise the derelict, industrial fabric of the past and celebrate the hands-on spirit of the sites history. Reinvigorating the former factory as a means to deconstruct local discarded ceramic objects and surrounding building waste such as bricks, tiles and concrete to be used as new material for the workshops.

It aims to drive social change by enabling public access to a series of workshops that investigate material, skill, learning and craft as a communal activity for the surrounding community and local crafts-people. A place to both explore how inanimate objects enable people – individually and collectively – to form and transform themselves, as well as to produce, test and implement ideas for the future of the area. Clay is the material that enables this process to unfold: responsive and flexible, choreographed by body, hands and mind through a labour- intensive process. Following two years of a pandemic, a fractured local community experiencing gentrification, about to become absorbed with a middle class housing development – there is not only the need for public, social space but for involvement of individuals in the construction of their spaces. Acting as a way of developing local economies and artistic education, forming a creative ecology where community, artists and creatives can become economic engines for neighbourhoods and a space that has been devalued.