We began the year with a study of great architecture which span the millennia. The piece of work I was lucky enough to dive into was Lina Bo Bardi’s Teatro Oficina – a theatre in Sao Paulo. The project is a perfect display of clever reuse and rebuild, using available materials.

    The following brief challenged us to find, study and reform an everyday object. I stumbled upon a reed and a tin flower pot, through the transformations of which I studied the idea of preservation – both metaphorically and literally. The results were a cast, a gilding and carefully curated image, alluding to 17th c. Dutch sill life paintings.

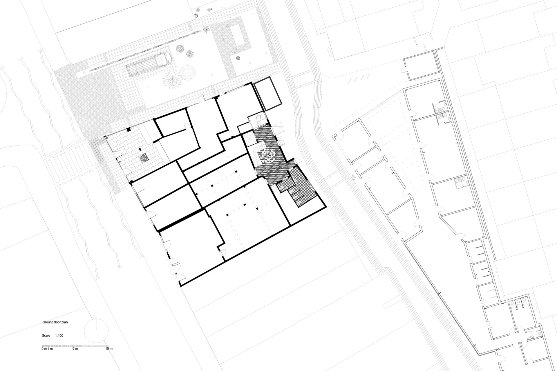
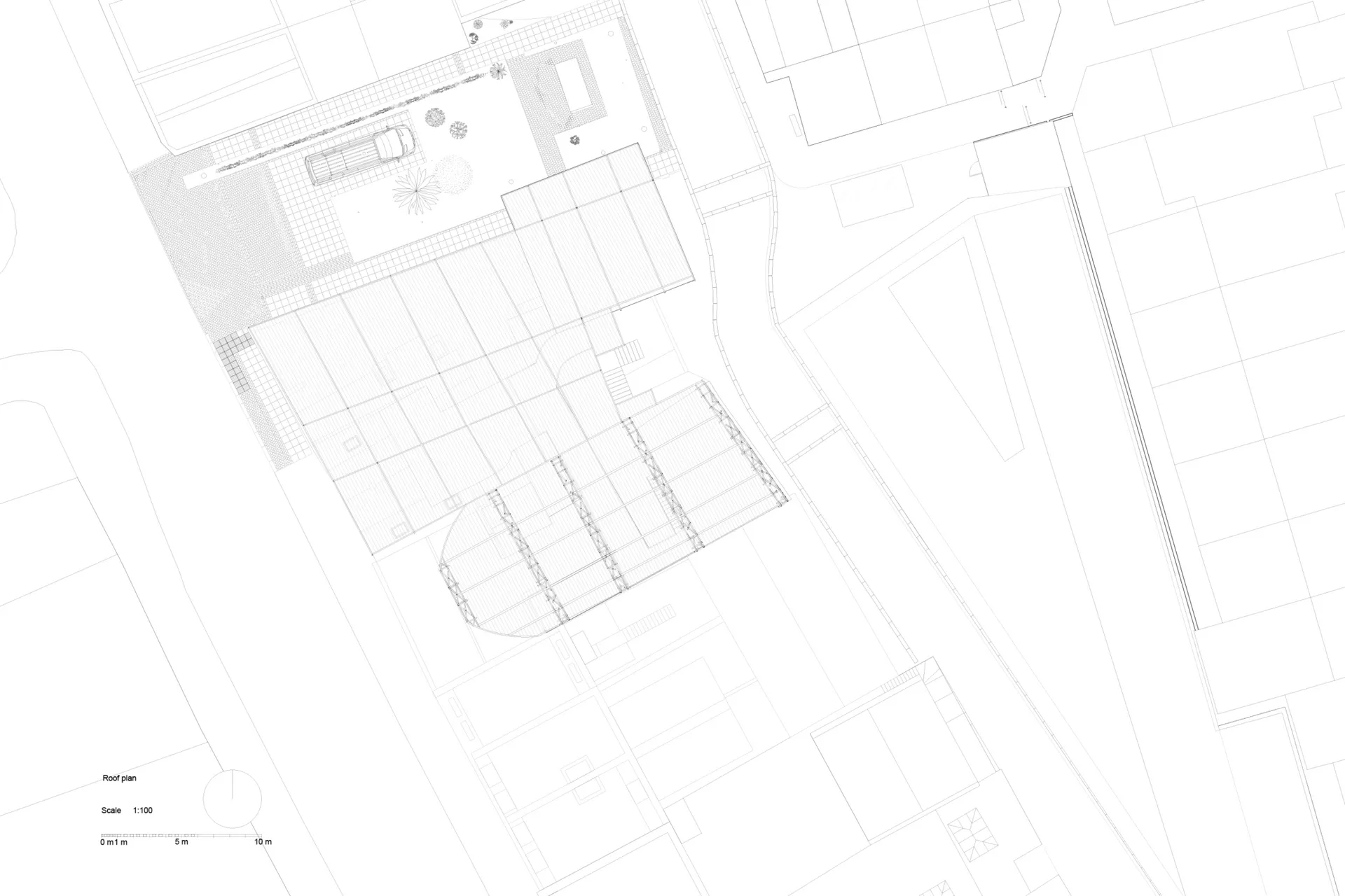
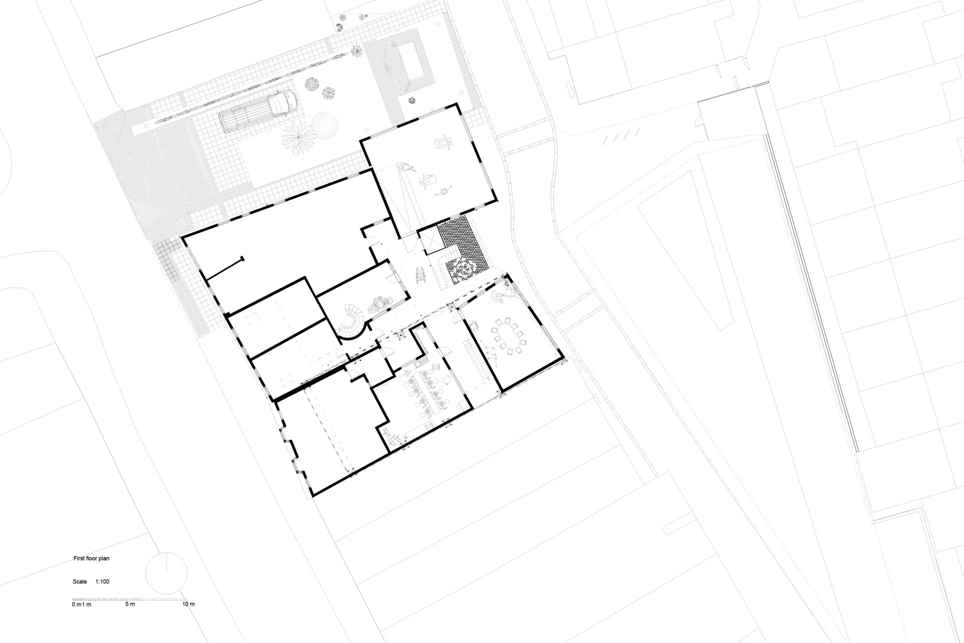
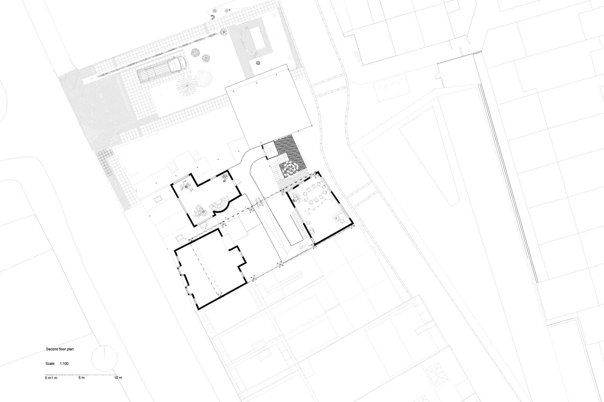
    The site of my thesis is located on Rye Lane in Peckham. I propose a “school for adults”, where people can come together and learn anything from music and pottery to German literature and economics. The building consist of series of small structures erected over the backs of existing storage rooms, located in the rears of four houses along Rye Lane. The project also seeks to extend the high street, bringing it to a smaller parallel road via a rain garden, which indices pedestrians to veer off the main road.